Résumé
-
-
327 m2 -
265 m2 -
5
Chambres -
2
Salles-de-bains
Ensemble immobilier situé en plein coeur de la ville frontalière de GIVET, composé d'une maison d'habitation (louée 663€/mois) et d'un rez commercial + appartement, à rénover.
Composition partie 1 (commerce + appartement) :
- Au rez de chaussée : local commercial de 50m², arrière-pièce, WC extérieur, cour et remise
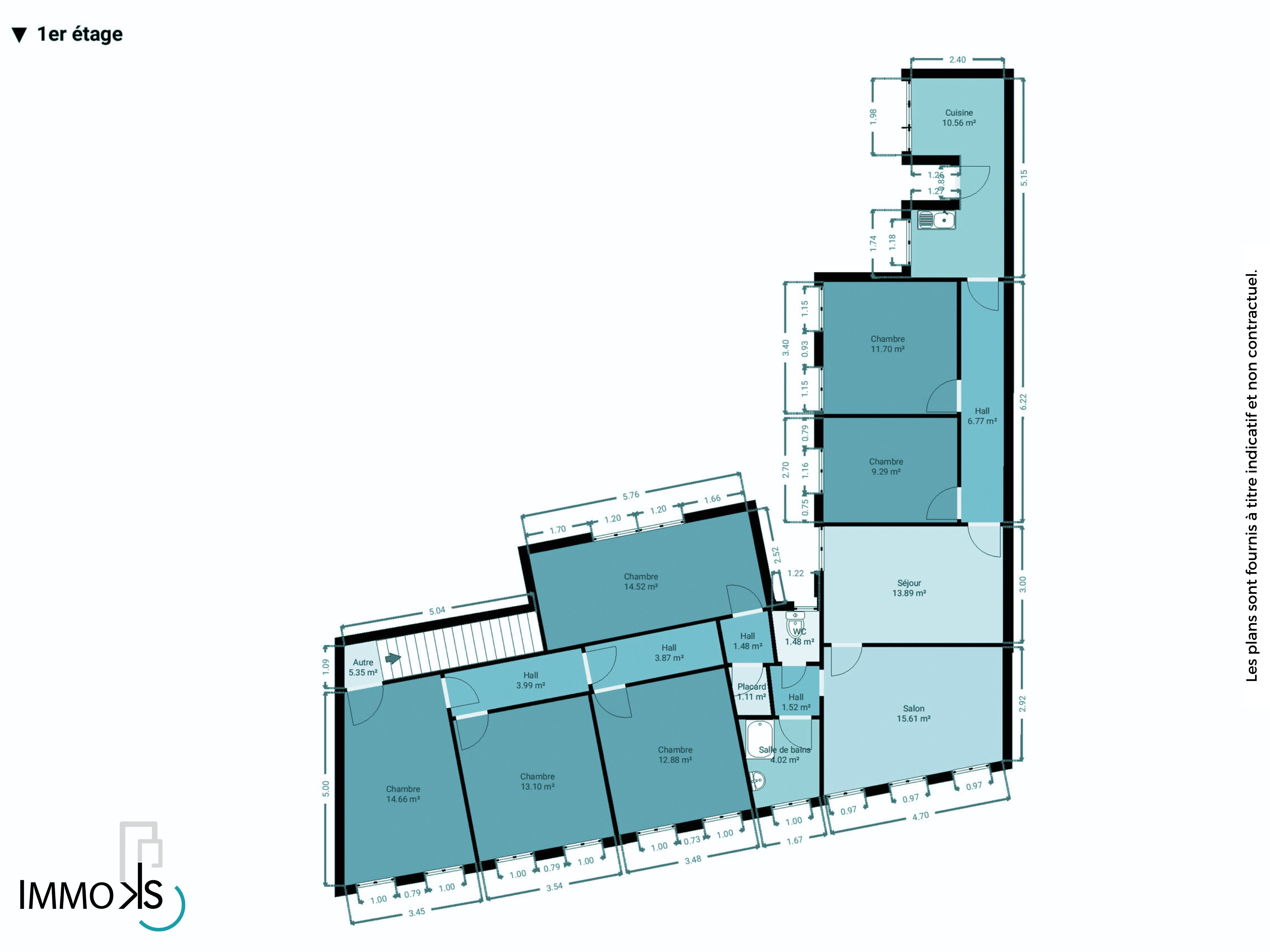
- Au 1er étage (accès par la cour) : cuisine non meublée, hall, 2 chambres, salle à manger, salon, salle de bain et WC.
Cour extérieure bétonnée.
Composition partie 2 (maison) :
- Au rez-de-chaussée : hall d'entrée, cuisine, beau séjour de 32m², buanderie, WC et salle de bains.
- Au premier étage : pièce passante de 14m² (bureau, dressing,...), hall de nuit, 3 chambres, placard de rangement.
À l'extérieur, a maison dispose d'un beau jardin orienté S-O.
Prix souhaité : 140.000€ pour l'ensemble
Taxe foncière : 1.384€
Éléments techniques :
Construction traditionnelle en brique et pierre
Toiture en ardoises artificielles et plaques ondulées (fibro-ciment)
Châssis PVC avec triple vitrage (+1 maison)
Châssis en bois avec simple vitrage (rez maison, commerce et appartement)
Chauffage central au gaz, chaudière à condensation, année 2019 (commerce et appartement)
Radiateurs électriques (maison) + présence d'un système de chauffage central, chaudière à remplacer
Production d'eau chaude sur chaudière (commerce et appartement)
Production d'eau chaude sur boiler électrique, année 2017 (200l)
Maison partiellement isolée par l'intérieur
Commerce + appartement :
DPE E - 284kWh/m²/an
Emissions GES E - 62kgCO2/m²/an
Montant estimé des dépenses annuelles d'énergie pour un usage standard : entre 2030€ et 2790€ par an. Prix moyens des énergies indexés sur les années 2021, 2022, 2023 (abonnements compris).
Maison :
DPE D - 239kWh/m²/an
Emissions GES B - 7kgCO2/m²/an
Montant estimé des dépenses annuelles d'énergie pour un usage standard : entre 2820€ et 3860€ par an. Prix moyens des énergies indexés sur les années 2021, 2022, 2023 (abonnements compris).
Honoraires de l'agence à charge du vendeur.
Diagnostics complets disponibles sur demande.
Composition partie 1 (commerce + appartement) :
- Au rez de chaussée : local commercial de 50m², arrière-pièce, WC extérieur, cour et remise
- Au 1er étage (accès par la cour) : cuisine non meublée, hall, 2 chambres, salle à manger, salon, salle de bain et WC.
Cour extérieure bétonnée.
Composition partie 2 (maison) :
- Au rez-de-chaussée : hall d'entrée, cuisine, beau séjour de 32m², buanderie, WC et salle de bains.
- Au premier étage : pièce passante de 14m² (bureau, dressing,...), hall de nuit, 3 chambres, placard de rangement.
À l'extérieur, a maison dispose d'un beau jardin orienté S-O.
Prix souhaité : 140.000€ pour l'ensemble
Taxe foncière : 1.384€
Éléments techniques :
Construction traditionnelle en brique et pierre
Toiture en ardoises artificielles et plaques ondulées (fibro-ciment)
Châssis PVC avec triple vitrage (+1 maison)
Châssis en bois avec simple vitrage (rez maison, commerce et appartement)
Chauffage central au gaz, chaudière à condensation, année 2019 (commerce et appartement)
Radiateurs électriques (maison) + présence d'un système de chauffage central, chaudière à remplacer
Production d'eau chaude sur chaudière (commerce et appartement)
Production d'eau chaude sur boiler électrique, année 2017 (200l)
Maison partiellement isolée par l'intérieur
Commerce + appartement :
DPE E - 284kWh/m²/an
Emissions GES E - 62kgCO2/m²/an
Montant estimé des dépenses annuelles d'énergie pour un usage standard : entre 2030€ et 2790€ par an. Prix moyens des énergies indexés sur les années 2021, 2022, 2023 (abonnements compris).
Maison :
DPE D - 239kWh/m²/an
Emissions GES B - 7kgCO2/m²/an
Montant estimé des dépenses annuelles d'énergie pour un usage standard : entre 2820€ et 3860€ par an. Prix moyens des énergies indexés sur les années 2021, 2022, 2023 (abonnements compris).
Honoraires de l'agence à charge du vendeur.
Diagnostics complets disponibles sur demande.
Adresse:
Rue Oger 14-16
Commune :
Givet
Code postal :
08600
Pays :
France
ID de la propriété :
6306569
Prix :
140.000€
Surface habitable : 265 m2
Taille du lot de propriété :327 m2
Chambres : 5
Salles-de-bains : 2
Classe énergétique :
Code unique : 2508E03772
Consommation spécifique d'énergie primaire : 239 kWh/m²a
| Accès handicapés | Non |
| Largeur front de rue | 17.3 m |
| Cuisine | Oui |
| Buanderie | Oui |
| Chauffage (ind/coll) | individuel |
| Nbre de toilette(s) | 3 |
| Profession libérale poss. | Oui |
| Chambre 1 | 14.5 m² |
| Chambre 2 | 13 m² |
| Chambre 3 | 12.88 m² |
| Chambre 4 | 11.7 m² |
| Chambre 5 | 9.29 m² |
| Volets | Oui |
| Annexe | Oui |
| Précompte immobilier | 1384 |
| Double vitrage | Oui |
| Plan du rez-de-chaussée | Oui |
| Plan du premier étage | Oui |
| Plan d'implantation | Oui |
| Plan du cadastre | Oui |
| Sous régime TVA | Non |
| Section | AP |
| Jugement en cours | Non |
| Largeur de façade | 17.3 m |
| égouts | Oui |
| électricité | Oui |
| Châssis | bois ou pvc |
| Type d'environnement | centre ville |
| Loué | Oui |
| Destination bâtiment | commerces + habitation |
| Salle de séjour | 15 m² |
| Salle à manger | 17 m² |
| Cuisine | 19 m² |
| Salle de bain 1 | 3 m² |
| Chauffage | gaz (chau. centr.) |
| Bureau | 14 m² |
| Volets | Battants |
| Hall d'entrée | 6 m² |
| Numéro | 398 et 399 |
| Type d'environnement 2 | central |
| Orientation de la terrasse 1 | sud-ouest |
| Destination bâtiment | im. rapport |
| Sdb | bain |
| Surface (ha/a/ca) | 80m² + 247m² |
| Revenu cadastral (€) | 1384 |
| Exposition de la façade avant | nord-est |
| Gaz | Oui |
| Eau | Oui |
| Magasins | Oui |
| Ecoles | Oui |
| Centre-ville | Oui |
| Piscine publique | Oui |
| Télévision | Oui |
| X de coordonnées xy | 50.133698090118095 |
| Y de coordonnées xy | 4.83100712299347 |
| Jardin | Sud-ouest |
| Salle de bains 2 | 4 m² |
| Sdb 2 | bain |
| Revenu locatif | 663 |
| Cadastre (entité) | GIvet |
| Cadastre (division) | Givet |
| Label PEB | D |
| Emission CO2 | 7 |
| Orientation du jardin | sud ouest |
| Vitrage | autre |
| Type de propriété | propriété complète |
| Cour | Oui |
| Hall de nuit | 8 m² |
| Type de route d'accès | route prov. / départ. |
| Clôture | Oui |
| Type de vente | pleine propriété |
| Type de construction | traditionnel |
| Nbre de pièce(s) | 12 |
| Escalier fixe | Oui |
| Remise | Oui |
| Dépendances | Oui |
| Route d'accès | Oui |
| Classe de CO2 | E |
| PEB valide jusqu'au | 02/03/2035 00:00 |
| Etat risque et pollution | Oui |
| Eau chaude - Distribution | individuelle |
| Date du PEB | 02/04/2025 00:00 |
Toutes les informations apparentes sont transmises sous conditions, les communiqués présents ne peuvent aucunement valoir engagement de vente
Toutes les informations apparentes sont transmises sous conditions, les communiqués présents ne peuvent aucunement valoir engagement de vente