Overzicht
-
-
95.3 m2 -
90.5 m2 -
3
Slaapkamers -
1
Badkamers
Gelegen in het hart van de Semois vallei, tussen Alle en Vresse, kom en ontdek dit stenen huis met 2 gevels. Enkele opfrissingen (schilderen, naleving van de elektrische installatie, ...) zijn te verwachten om ten volle van dit huis te kunnen genieten.
Samenstelling :
Begane grond: woonkamer met open keuken, wasruimte, wc.
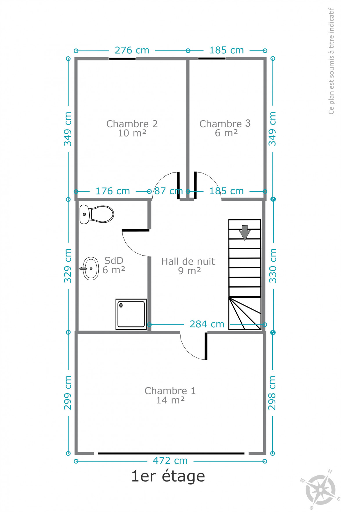
1e verdieping: Nachthal, 2 slaapkamers, doucheruimte (douche, wastafel, wc) volledig betegeld, 3e slaapkamer of kantoor.
Buiten: 3 parkeerplaatsen: mogelijkheid om een ontspanningsruimte/tuin aan te leggen.
Groene en rustige omgeving.
Gewenste prijs: 107.000€.
Technische details:
PVC dubbele beglazing
Elektrische verwarming (convectoren + radiatoren)
Technische ruimte met elektrische meter
Elektriciteitsmeter per uur
Elektrische boiler
Samenstelling :
Begane grond: woonkamer met open keuken, wasruimte, wc.
1e verdieping: Nachthal, 2 slaapkamers, doucheruimte (douche, wastafel, wc) volledig betegeld, 3e slaapkamer of kantoor.
Buiten: 3 parkeerplaatsen: mogelijkheid om een ontspanningsruimte/tuin aan te leggen.
Groene en rustige omgeving.
Gewenste prijs: 107.000€.
Technische details:
PVC dubbele beglazing
Elektrische verwarming (convectoren + radiatoren)
Technische ruimte met elektrische meter
Elektriciteitsmeter per uur
Elektrische boiler
Adres:
Rue Grande 15C
Gemeenschap :
Chairière
Postcode :
5550
Land :
België
Property-ID :
5100332
Prijs :
107.000€
Woonruimte : 90.5 m2
Perceel grootte :95.3 m2
Slaapkamers : 3
Badkamers : 1
Energie klasse :
Specifiek primair energieverbruik : 362 kWh/m²a
| Verdiepingen - aantal | 1 |
| Parking buiten | Oui |
| Voorzieningen gehand. | Non |
| Breedte aan straatkant | 11 m |
| Bebouwde oppervlakte | 45.4 m² |
| Keuken | Oui |
| Wasplaats | Oui |
| Type verwarming | individueel |
| Toiletten - aantal | 2 |
| Aantal douchekamers | 1 |
| Slaapkamer 1 | 14 m² |
| Slaapkamer 2 | 10 m² |
| Slaapkamer 3 | 6 m² |
| Openbaar vervoer | 10 m |
| Bruto oppervlakte | 90.5 m² |
| Vensters | Oui |
| Netto oppervlakte | 90.5 m² |
| Dubbele beglazing | Oui |
| Gevelbreedte - breedte | 4.62 m |
| Grond diepte | 20 m |
| Telefoon | Oui |
| Telefooncentrale | Oui |
| Elektriciteit | Oui |
| Type schrijnwerkerij | pvc |
| Type buurt | rustig |
| Aantal parking buiten | 3 |
| Keuken | 0 m² |
| Wasplaats | 3.49 m² |
| Type verwarming | elektrische accumulatoren |
| Vloerbedekking - type | tegels |
| Keuken - type | gedeeltelijk geïnstalleerd |
| Oriëntatie van de voorgevel | oost |
| Kabeltelevisie | Oui |
| Telefoonbekabeling | Oui |
| Water | Oui |
| Openbaar vervoer in de buurt | Oui |
| Elektriciteitskeuring beschikbaar | nee |
| Autostrade in de buurt | Oui |
| Autostrade | 15000 m |
| Station in de buurt | Oui |
| Station | 11000 m |
| Xy coordinaten - x | 49.858932 |
| Xy coordinaten - y | 4.952743 |
| Titel advertentie - vul titel in | huis met 3 slaapkamers |
| EPC-klasse | E |
| CO2 uitstoot | 103 |
| Type beglazing | dubbele beglazing |
| Nachthal | 9.26 m² |
| Type constructie - type | traditioneel |
| Grond breedte | 11 |
| Aantal lokalen | 8 |
| Externe trap | Oui |
| EPC datum | 11/29/2022 00:00 |
Toutes les informations apparentes sont transmises sous conditions, les communiqués présents ne peuvent aucunement valoir engagement de vente
Toutes les informations apparentes sont transmises sous conditions, les communiqués présents ne peuvent aucunement valoir engagement de vente