Résumé
-
-
1260 m2 -
50 m2 -
1
Chambres -
1
Salles-de-bains
Sur les hauteurs du beau village de Houyet, venez découvrir cette superbe petite maison de vacances, très cosy et idéalement située dans une rue très calme offrant une magnifique vue sur le village et les campagnes environnantes.
Vous cherchez le calme, aimez les balades en forêt et le long de l’eau, voici l’endroit qu’il vous faut ! En descendant au village (+-1km) vous trouverez : épicerie, pharmacie, librairie, poste, gare, taverne etc. ainsi que le ravel qui relie Houyet à Rochefort.
Composition :
- Sous-sol : Vide sanitaire
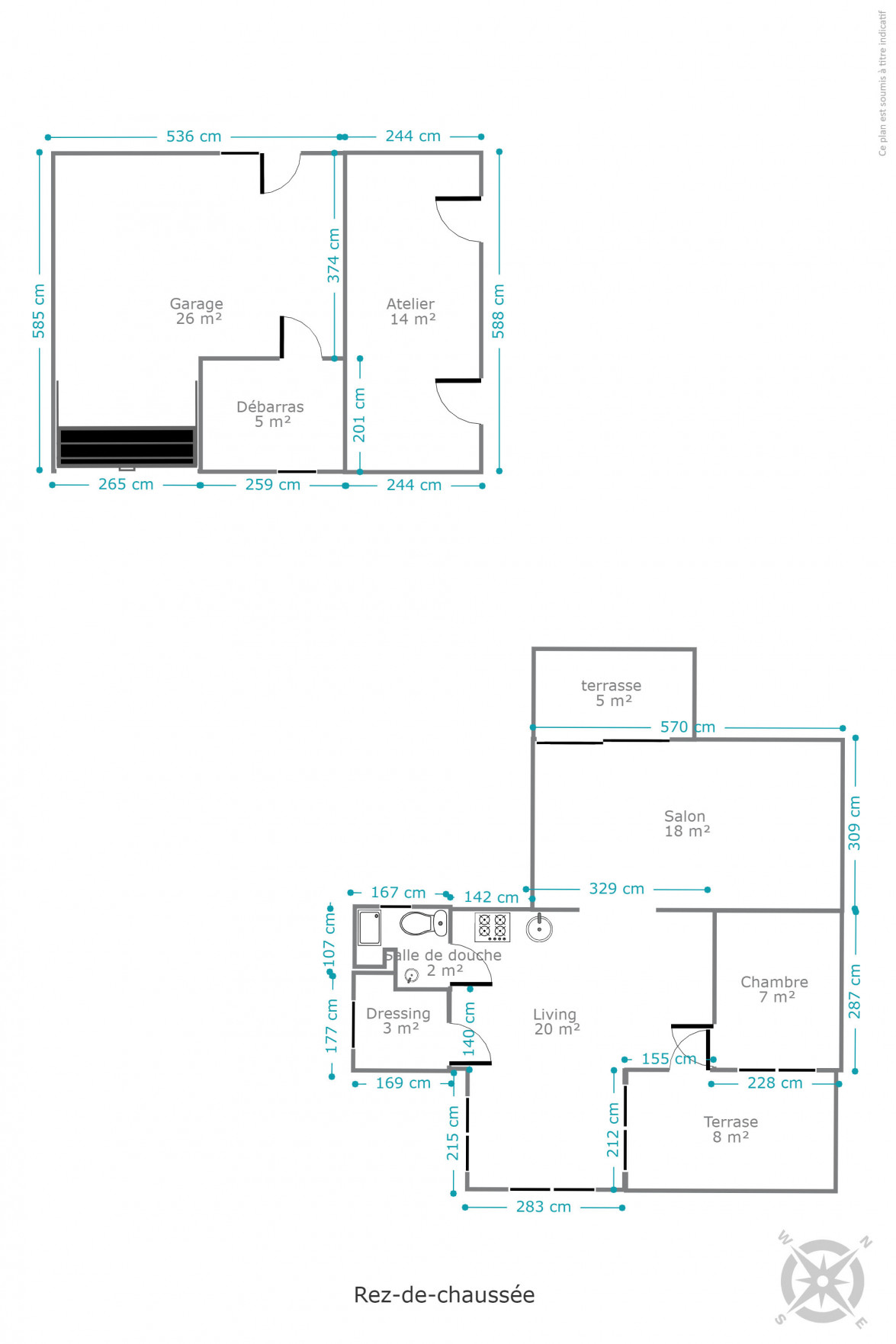
- Rez-de-chaussée : Beau living avec cuisine et coin lecture, chambre, dressing, salle de douche, salon avec accès à la terrasse arrière par la baie vitrée.
Extérieur : Belle parcelle de terrain joliment aménagée, deux terrasses, garage, atelier et petit point d’eau.
Le bien est vendu entièrement meublé et équipé !
Faire offre à partir de 130.000€*
Domiciliation possible.
Éléments techniques :
Construction de 1983 en préfabriqué
Ajout du salon (murs : Ytong 24cm, toiture : laine de verre 8cm + isolation rigide 5cm) et parement complet de l'habitation (Ytong 7cm + crépis) en 2006
Toiture en tuiles, rénovée et isolée (15cm de laine de verre) en 2010
Chape isolante sous le salon (8cm)
Poêle à bois dans le salon
Convecteur au gaz dans le living
Vide sanitaire sous toute la surface construite, sauf le salon
Jardin entièrement clôturé
Compteur électrique simple
* Le prix indiqué est renseigné comme étant le prix de départ et sous réserve d'acceptation du propriétaire.
Vous cherchez le calme, aimez les balades en forêt et le long de l’eau, voici l’endroit qu’il vous faut ! En descendant au village (+-1km) vous trouverez : épicerie, pharmacie, librairie, poste, gare, taverne etc. ainsi que le ravel qui relie Houyet à Rochefort.
Composition :
- Sous-sol : Vide sanitaire
- Rez-de-chaussée : Beau living avec cuisine et coin lecture, chambre, dressing, salle de douche, salon avec accès à la terrasse arrière par la baie vitrée.
Extérieur : Belle parcelle de terrain joliment aménagée, deux terrasses, garage, atelier et petit point d’eau.
Le bien est vendu entièrement meublé et équipé !
Faire offre à partir de 130.000€*
Domiciliation possible.
Éléments techniques :
Construction de 1983 en préfabriqué
Ajout du salon (murs : Ytong 24cm, toiture : laine de verre 8cm + isolation rigide 5cm) et parement complet de l'habitation (Ytong 7cm + crépis) en 2006
Toiture en tuiles, rénovée et isolée (15cm de laine de verre) en 2010
Chape isolante sous le salon (8cm)
Poêle à bois dans le salon
Convecteur au gaz dans le living
Vide sanitaire sous toute la surface construite, sauf le salon
Jardin entièrement clôturé
Compteur électrique simple
* Le prix indiqué est renseigné comme étant le prix de départ et sous réserve d'acceptation du propriétaire.
Adresse:
Bois Jacques 3
Commune :
Houyet
Code postal :
5560
Pays :
Belgique
ID de la propriété :
4325269
Prix :
130.000€
Surface habitable : 50 m2
Taille du lot de propriété :1260 m2
Chambres : 1
Salles-de-bains : 1
Classe énergétique :
Code unique : 20210423005810
Consommation spécifique d'énergie primaire : 463 kWh/m²a
Consommation théorique totale d'énergie primaire : 26840 kWh/an
| Année de construction | 1983 |
| Nombre de garage | 1 |
| Largeur front de rue | 31.1 m |
| Surface bâtie | 94 m² |
| Espace ventilé | Oui |
| Cuisine | Oui |
| Nbre de dressing(s) | 1 |
| Chauffage (ind/coll) | individuel |
| Nbre de toilette(s) | 1 |
| Nombre de sdd | 1 |
| Atelier | Oui |
| Chambre 1 | 6.6 m² |
| Transports en commun | 400 m |
| Débarras | Oui |
| Fenêtres | Oui |
| Surface nette | 50 m² |
| Double vitrage | Oui |
| Année de rénovation | 2006 |
| Largeur de façade | 6.85 m |
| Profondeur terrain | 41 m |
| électricité | Oui |
| Isolation | Oui |
| Châssis | aluminium |
| Type d'environnement | calme |
| Loué | Non |
| Surface de terrasse 1 | 8 m² |
| Type de façade avant | crépi |
| Garage | 25.66 m² |
| Type de toit | en pente |
| Nbre de terrasse(s) | 2 |
| Dressing | 2.6 m² |
| Chauffage | bois |
| Débarras | 5.2 m² |
| Type de revêtement de sol | carrelages |
| Atelier | 2.7 m² |
| Type d'environnement 2 | campagne |
| Type de cuisine | semi-équipée |
| Sdb | douche |
| Type de éclairage | spots |
| Type d'environnement 3 | boisé |
| Revenu cadastral (€) | 298 |
| Exposition de la façade avant | sud |
| Eau | Oui |
| Transports en commun | Oui |
| Autoroute | Oui |
| Autoroute | 8500 m |
| Profondeur de garage | 5.86 m |
| Largeur de garage | 5.36 m |
| Gare | Oui |
| Gare | 800 m |
| X de coordonnées xy | 50.183 |
| Y de coordonnées xy | 5.00517 |
| Jardin | déclivité plat, Aménagé pelouse, fermé, déclivité en pente, nord-ouest |
| Label PEB | F |
| Emission CO2 | 62 |
| Orientation du jardin | nord ouest |
| Vitrage | double vitrage |
| Vitrage | double vitrage |
| Isolation | Murs isolés |
| Largeur terrain | 31 |
| Nbre de pièce(s) | 6 |
Toutes les informations apparentes sont transmises sous conditions, les communiqués présents ne peuvent aucunement valoir engagement de vente
Toutes les informations apparentes sont transmises sous conditions, les communiqués présents ne peuvent aucunement valoir engagement de vente