Résumé
-
-
1985 m2 -
271 m2 -
5
Chambres -
2
Salles-de-bains
Impressionnante villa contemporaine de 2001 située à LIBIN, à proximité immédiate de grands axes routiers et autoroutiers.
Grâce à son volume et à sa disposition, cette propriété offre plusieurs possibilités ; maison unifamiliale avec possibilité d'espace professionnel. Une annexe de 2004 vient compléter cette habitation.
Composition :
MAISON (surface habitable de 271m2) :
Sous-sol : Cave, vide ventilé.
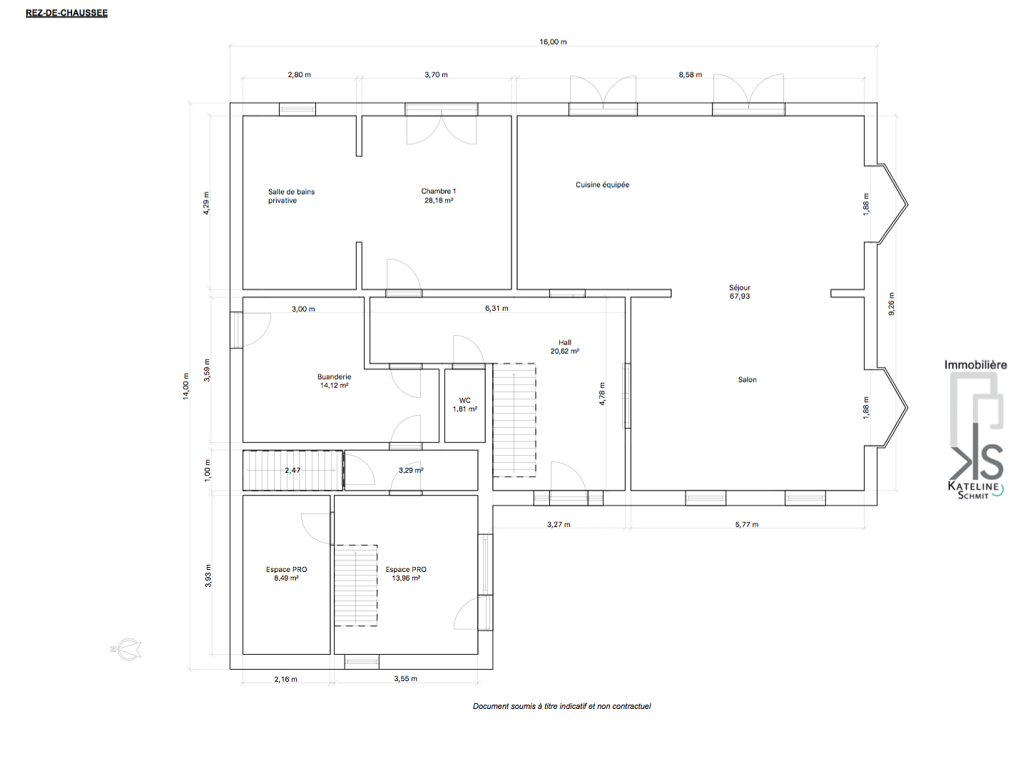
Rez-de-chaussée : Hall d'entrée, wc individuel avec lave-mains, cuisine équipée récente laquée blanche avec îlot central, espace bar, salon avec cassette à bois, 1 chambre parentale avec agréable salle de bains privative (baignoire, douche, double lavabos, wc) entièrement carrelée, espace professionnel (actuellement espace d'accueil pour un salon d'esthétique) avec accès à l'étage, buanderie/chaufferie. Terrasse.
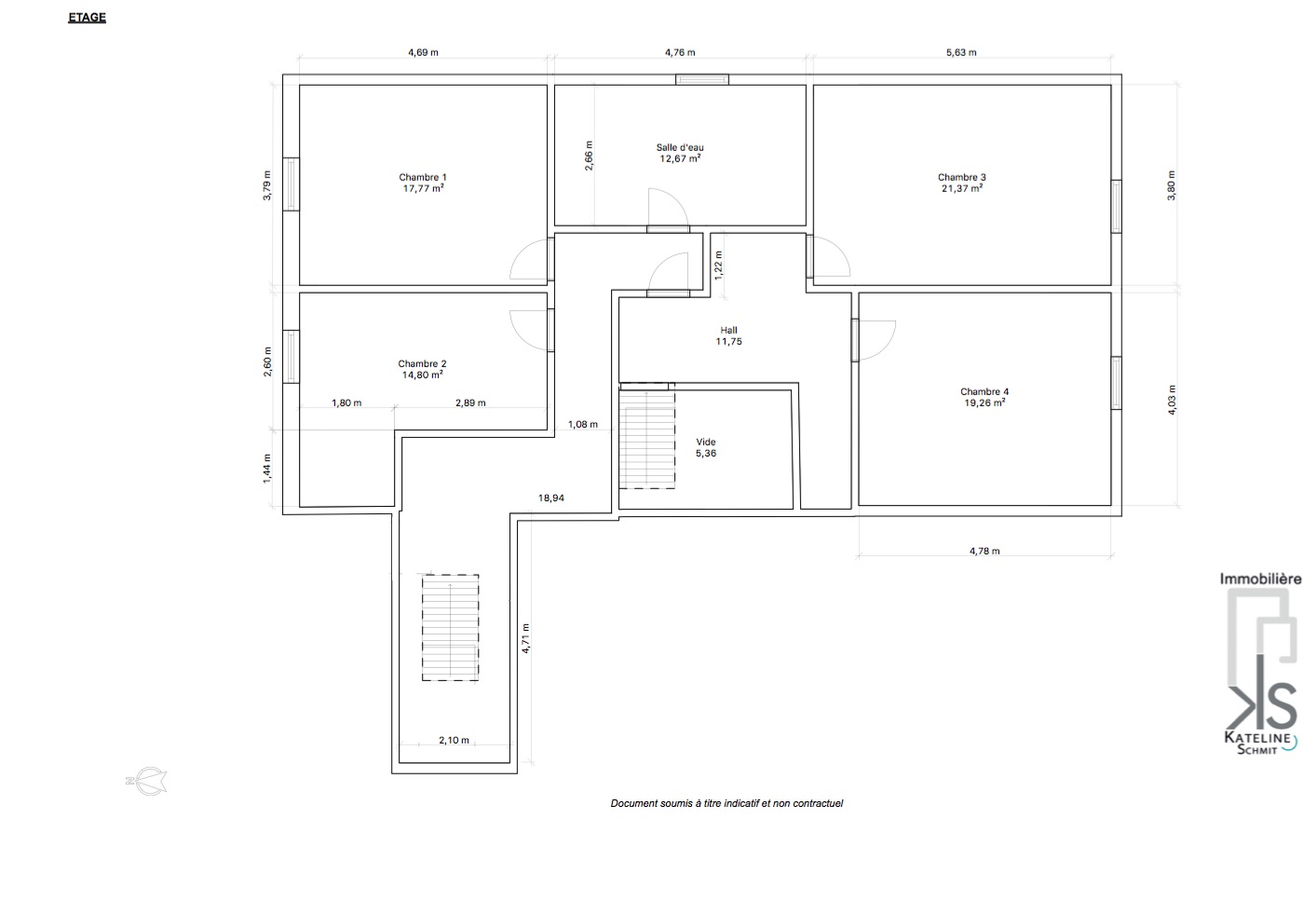
1er étage : Hall de nuit, 4 chambres (2 chambres sont actuellement utilisées pour l'espace prof), 1 salle de bains (douche, lavabo, wc).
2ème étage : Comble non aménageable
Extérieurs : Terrain de 1985m2, emplacements de parking, cadre verdoyant. Situation agréable dans un quartier résidentiel calme. Vue panoramique vers l'arrière.
Eléments techniques :
Façade avant constituée de pierres naturelles de schiste (en partie)
Terrasses et accès avec en pavés autoblocant
Chauffage central au mazout
Production eau chaude sur chaudière
Grenier isolé avec de 15 cm de laine de roche
Isolation des murs : 4 cm type stérodur
Système d'alarme précablé
Toiture en ardoises
Châssis en bois double vitrage
Eléctricité conforme jusqu'au 31/01/2027
Compteur bi-horaire
Revêtements de sol : Carrelages, parquet massif, parquet stratifié.
Citerne d'eau de pluie avec groupe hydrophore (wc, machines)
Egouttage public.
ANNEXE (surface au sol brute 108m2) :
Sous-sol : Caves
Rez-de-chaussée : Double garages avec portes sectionnelles électriques, espace bureau.
Grâce à son volume et à sa disposition, cette propriété offre plusieurs possibilités ; maison unifamiliale avec possibilité d'espace professionnel. Une annexe de 2004 vient compléter cette habitation.
Composition :
MAISON (surface habitable de 271m2) :
Sous-sol : Cave, vide ventilé.
Rez-de-chaussée : Hall d'entrée, wc individuel avec lave-mains, cuisine équipée récente laquée blanche avec îlot central, espace bar, salon avec cassette à bois, 1 chambre parentale avec agréable salle de bains privative (baignoire, douche, double lavabos, wc) entièrement carrelée, espace professionnel (actuellement espace d'accueil pour un salon d'esthétique) avec accès à l'étage, buanderie/chaufferie. Terrasse.
1er étage : Hall de nuit, 4 chambres (2 chambres sont actuellement utilisées pour l'espace prof), 1 salle de bains (douche, lavabo, wc).
2ème étage : Comble non aménageable
Extérieurs : Terrain de 1985m2, emplacements de parking, cadre verdoyant. Situation agréable dans un quartier résidentiel calme. Vue panoramique vers l'arrière.
Eléments techniques :
Façade avant constituée de pierres naturelles de schiste (en partie)
Terrasses et accès avec en pavés autoblocant
Chauffage central au mazout
Production eau chaude sur chaudière
Grenier isolé avec de 15 cm de laine de roche
Isolation des murs : 4 cm type stérodur
Système d'alarme précablé
Toiture en ardoises
Châssis en bois double vitrage
Eléctricité conforme jusqu'au 31/01/2027
Compteur bi-horaire
Revêtements de sol : Carrelages, parquet massif, parquet stratifié.
Citerne d'eau de pluie avec groupe hydrophore (wc, machines)
Egouttage public.
ANNEXE (surface au sol brute 108m2) :
Sous-sol : Caves
Rez-de-chaussée : Double garages avec portes sectionnelles électriques, espace bureau.
Adresse:
Rue du Monty 198A
Commune :
Libin
Code postal :
6890
Pays :
Belgique
ID de la propriété :
2191794
Prix :
Prix sur demande
Surface habitable : 271 m2
Taille du lot de propriété :1985 m2
Chambres : 5
Salles-de-bains : 2
Classe énergétique :
Code unique : 20151117018469
Consommation spécifique d'énergie primaire : 338 kWh/m²a
Consommation théorique totale d'énergie primaire : 338 kWh/an
| Année de construction | 2001 |
| Nombre de garage | 2 |
| Parking intérieur | Oui |
| Parking extérieur | Oui |
| Espace ventilé | Oui |
| Salle à manger | Oui |
| Cuisine | Oui |
| Buanderie | Oui |
| Nbre de cave(s) | 1 |
| Chauffage (ind/coll) | individuel |
| Nbre de toilette(s) | 3 |
| Profession libérale poss. | Oui |
| Chambre 1 | 15.87 m² |
| Chambre 2 | 17.7 m² |
| Chambre 3 | 14.8 m² |
| Chambre 4 | 21.3 m² |
| Chambre 5 | 19.2 m² |
| Bureau/commerce | Oui |
| Cage d'escalier | Oui |
| Précompte immobilier | 1796.51 |
| Double vitrage | Oui |
| Section | B |
| Largeur de façade | 16 m |
| égouts | Oui |
| Téléphone | Oui |
| Citerne à mazout | Oui |
| Isolation | Oui |
| Châssis | bois |
| Type d'environnement | calme |
| Permis de bâtir | Oui |
| Destination bâtiment | privé - unifamilial |
| Structure - matériaux | béton |
| Salle de séjour | 68 m² |
| Buanderie | 14 m² |
| Salle de bain 1 | 12 m² |
| Chauffage | mazout (chauf. centr.) |
| Type de revêtement de sol | carrelages |
| Numéro | 761C |
| Capacité de la citerne à mazout | 2400 |
| Destination bâtiment | prof. libérale + habitation |
| Type de cuisine | super-équipée |
| Sdb | douche et bain |
| Type de grenier | grenier bas |
| Isolation | toit et murs isolés |
| Revenu cadastral (€) | 1840 |
| Affectation urbanistique | zone d'habitat rurale |
| Eau | Oui |
| Certificat d'électricité | oui, conforme |
| Grenier | Oui |
| Cave | Oui |
| X de coordonnées xy | 49.9858292 |
| Y de coordonnées xy | 5.2568214 |
| Salle de bains 2 | 12.6 m² |
| Cadastre (entité) | LIBIN |
| Cadastre (division) | Libin |
| Label PEB | D |
| Vitrage | double vitrage |
Toutes les informations apparentes sont transmises sous conditions, les communiqués présents ne peuvent aucunement valoir engagement de vente
Toutes les informations apparentes sont transmises sous conditions, les communiqués présents ne peuvent aucunement valoir engagement de vente